Sun Microsystems, Inc.   Oracle System Handbook - ISO 7.0 May 2018 Internal/Partner Edition
   Home | Current Systems | Former STK Products | EOL Systems | Components | General Info | Search | Feedback



StorageTek 5800

375-3427 602-3398
Tyan Tomcat K8E S2865 Service Processor Assy/FRU

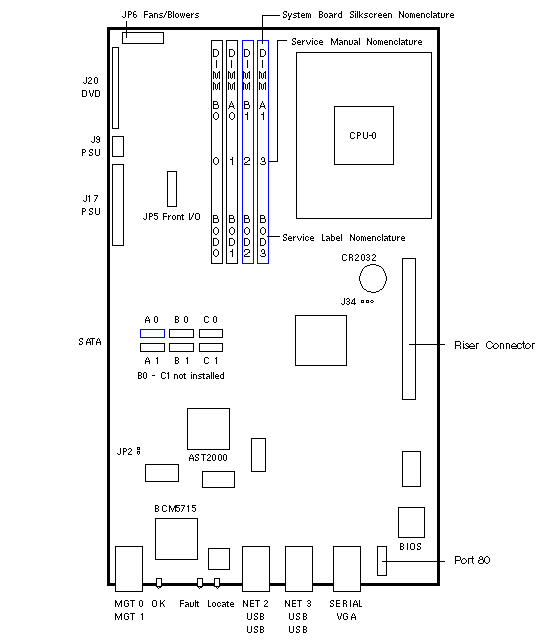
Connectors

LOCATION DESCRIPTION
J17
J28
Front Panel LAN1 Link and Activity LED
Front Panel LAN2 Link and Activity LED
J19
J23
Front Panel LAN1 Speed LED
Front Panel LAN2 Speed LED
J30
J31
SATA1 to Backplane
SATA2 to Backplane
J34
J35
USB3 to Front I/O Board
USB4 not stuffed
J37
J38
SATA3 not used
SATA4 not used
J40 COM2 Serial Port not used
J45 LED/Power Control Header to Backplane
J46 SMDC to Backplane to Service Processor

Jumper Settings

LOCATION PINS SETTING DESCRIPTION
JP1 1-2 In LAN2 Enable (default)
JP2 1-2
2-3
In
In
Normal CMOS (default)
Clear CMOS (temporary setting only)
JP3 1-2
2-3
In
In
Select 3.3V PCI Slot (default)
Select 5.0V PCI Slot

StorageTek 5800 Codename: Honeycomb 1.1

StorageTek 5800 Notes

  1. Two 1GB DIMMs are installed in slots DIMM 1 and DIMM 2.
  2. No memory is installed in slots DIMM 3 and DIMM 4.
  3. Service Processor FRU 602-2298 was discontinued in October 2007. (WO_37608)

References

  1. Sun StorageTek 5800 System Documentation.



StorageTek 5800

380-1384
Node Chassis Assy/FRU
Tyan Tomcat K8E S2865

Connectors

LOCATION DESCRIPTION
J17
J28
Front Panel LAN1 Link and Activity LED
Front Panel LAN2 Link and Activity LED
J19
J23
Front Panel LAN1 Speed LED
Front Panel LAN2 Speed LED
J30 SATA1 to Backplane J5
J31 SATA2 to Backplane J3
J37 SATA3 to Backplane J2
J38 SATA4 to Backplane J1
J34 USB3 to LED/Switch/USB Board
J40 COM2 Serial Port not used
J45 Pins 16/18 to Top Cover Interlock Switch
J45 LED/Power Control Header to M1013 Adapter Board
J46 SMDC to M3290 Service Processor

Jumper Settings

LOCATION PINS SETTING DESCRIPTION
JP1 1-2 In LAN2 Enable (default)
JP2 1-2
2-3
In
In
Normal CMOS (default)
Clear CMOS (temporary setting only)
JP3 1-2
2-3
In
In
Select 3.3V PCI Slot (default)
Select 5.0V PCI Slot

StorageTek 5800 Codename: Honeycomb 1.1

StorageTek 5800 Notes

  1. The StorageTek 5800 Node uses X2100 System Board 375-3342 with different BIOS.
  2. The programmed StorageTek 5800 Node System Board has no Sun part number.
  3. The maximum memory configuration of the StorageTek 5800 Node is 3GB.
  4. Two 1GB DIMMs are installed in slots DIMM 1 and DIMM 2.
  5. Two 512MB DIMMs are installed in slots DIMM 3 and DIMM 4.

References

  1. Sun StorageTek 5800 System Documentation.



StorageTek 5800

375-3460 594-4828
P/N DA0S40MB6D3
MAC Address 001636xxxxxx
Service Processor
Assembly/FRU

Jumper Settings

LOCATION PINS SETTING DESCRIPTION
J4 1-2
1-2
Out
In
Normal AST2000 BMC (default)
Disable/Flash AST2000 BMC
J7 1-2
2-3
In
In
Clear CMOS (temporary setting only)
Normal CMOS (default)

StorageTek 5800 Codename: Honeycomb 1.1

Notes

  1. The memory configuration of the Service Processor is three 512MB DIMMs.
  2. Install memory beginning at DIMM 0 and ending at DIMM 3.
  3. System board removal requires a #2 Phillips Screwdriver and an 8mm nutdriver.
  4. The CPU speed and CPU part number is labeled on the blower air duct.
  5. Service Processor FRU 594-4828 was discontinued in October 2007. (WO_37608)

References

  1. Sun StorageTek 5800 System Documentation.

  Copyright © 2018 Oracle and/or its affiliates.  All rights reserved.
 Feedback