Oracle System Handbook
- ISO 7.0 May 2018 Internal/Partner Edition
Home
|
Current Systems
|
Former STK Products
|
EOL Systems
|
Components
|
General Info
|
Search
|
Feedback
DC Power Distribution Board
Hmm, you are using a very old browser. Click here to go directly to included content.
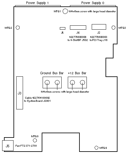
371-4750
411778800025
SATA DVD
Netra X4270 Codename:
Aurigi
Netra X4270 Notes
Cables are not labeled and are not assigned Sun part numbers.
Cable Kit 530-4439 includes the cables to J2, J3, and J4.
References
Sun Netra X4270 Server Documentation.
Copyright © 2018 Oracle and/or its affiliates. All rights reserved.
Feedback