Sun Microsystems, Inc.   Oracle System Handbook - ISO 7.0 May 2018 Internal/Partner Edition
   Home | Current Systems | Former STK Products | EOL Systems | Components | General Info | Search | Feedback



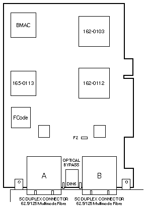
FDDI/P DAS 1.0/2.0/3.0

Options 1036 / 1153

370-2812
Network Peripherals PCB 105-0174
5V 32Bit 33MHz

Notes

  1. The minimum FDDI/P 1.0 OS is Solaris 2.5.1 Hardware: 4/97.
  2. Option 1153 includes FDDI 2.0 software for Solaris 7.
  3. The Solaris 8 Supplement includes FDDI 3.0 software.
  4. The final operating system is Solaris 9.
  5. The 3 Meter cable has a duplex MIC connector (male) on one end and a duplex SC connector (male) on the other end.
  6. Cable assembly 537-1009 includes type A, AM, B, BM, and S keys and duplex MIC to MIC (female to female) coupler 130-3122.

References

  1. SunFDDI PCI Adapter 1.0 Documentation
  2. SunFDDI/P Adapter 2.0 Documentation

  Copyright © 2018 Oracle and/or its affiliates.  All rights reserved.
 Feedback